动荷载作用下裂隙孔弹性半平面弹性板的动力分析

IF 2.1 3区 工程技术 Q3 MECHANICS
Zhenyu Liu, Niki D. Beskou, Edmond V. Muho, Ying Zhou
{"title":"动荷载作用下裂隙孔弹性半平面弹性板的动力分析","authors":"Zhenyu Liu,&nbsp;Niki D. Beskou,&nbsp;Edmond V. Muho,&nbsp;Ying Zhou","doi":"10.1007/s11012-025-02037-8","DOIUrl":null,"url":null,"abstract":"<div><p>This paper studies the dynamic response of an elastic concrete plate on a fissured poroelastic rock medium to a moving load under plane strain conditions. The plate is assumed to be thin, isotropic, and linear elastic. The fissured poroelastic rock medium is isotropic, fully saturated with water, and characterized by two types of porosity, one due to fissures separating it into blocks and one due to the pores in those blocks. The load is assumed to be uniformly distributed over a finite length and moves with constant speed. The problem, which describes a case of rigid pavement, is solved analytically/numerically by the complex Fourier series method. Thus, the load and the plate and rock medium displacements are expanded in complex Fourier series with respect to the horizontal coordinate (motion direction) and the time. Upon substitution of these expansions into the equations of motion for the plate and the half-plane rock medium, the corresponding partial differential equations are reduced to algebraic and ordinary differential equations, respectively, which can be easily solved. The resulting response solution is verified by comparison with existing solutions for special cases. Parametric studies are finally conducted for assessing the effects of problem parameters like porosities, permeabilities, thickness of the elastic plate, and vehicle load speed on the response of the plate.</p></div>","PeriodicalId":695,"journal":{"name":"Meccanica","volume":"60 9","pages":"2947 - 2968"},"PeriodicalIF":2.1000,"publicationDate":"2025-08-17","publicationTypes":"Journal Article","fieldsOfStudy":null,"isOpenAccess":false,"openAccessPdf":"","citationCount":"0","resultStr":"{\"title\":\"Dynamic analysis of an elastic plate on a fissured poroelastic half-plane under a moving load\",\"authors\":\"Zhenyu Liu,&nbsp;Niki D. Beskou,&nbsp;Edmond V. Muho,&nbsp;Ying Zhou\",\"doi\":\"10.1007/s11012-025-02037-8\",\"DOIUrl\":null,\"url\":null,\"abstract\":\"<div><p>This paper studies the dynamic response of an elastic concrete plate on a fissured poroelastic rock medium to a moving load under plane strain conditions. The plate is assumed to be thin, isotropic, and linear elastic. The fissured poroelastic rock medium is isotropic, fully saturated with water, and characterized by two types of porosity, one due to fissures separating it into blocks and one due to the pores in those blocks. The load is assumed to be uniformly distributed over a finite length and moves with constant speed. The problem, which describes a case of rigid pavement, is solved analytically/numerically by the complex Fourier series method. Thus, the load and the plate and rock medium displacements are expanded in complex Fourier series with respect to the horizontal coordinate (motion direction) and the time. Upon substitution of these expansions into the equations of motion for the plate and the half-plane rock medium, the corresponding partial differential equations are reduced to algebraic and ordinary differential equations, respectively, which can be easily solved. The resulting response solution is verified by comparison with existing solutions for special cases. Parametric studies are finally conducted for assessing the effects of problem parameters like porosities, permeabilities, thickness of the elastic plate, and vehicle load speed on the response of the plate.</p></div>\",\"PeriodicalId\":695,\"journal\":{\"name\":\"Meccanica\",\"volume\":\"60 9\",\"pages\":\"2947 - 2968\"},\"PeriodicalIF\":2.1000,\"publicationDate\":\"2025-08-17\",\"publicationTypes\":\"Journal Article\",\"fieldsOfStudy\":null,\"isOpenAccess\":false,\"openAccessPdf\":\"\",\"citationCount\":\"0\",\"resultStr\":null,\"platform\":\"Semanticscholar\",\"paperid\":null,\"PeriodicalName\":\"Meccanica\",\"FirstCategoryId\":\"5\",\"ListUrlMain\":\"https://link.springer.com/article/10.1007/s11012-025-02037-8\",\"RegionNum\":3,\"RegionCategory\":\"工程技术\",\"ArticlePicture\":[],\"TitleCN\":null,\"AbstractTextCN\":null,\"PMCID\":null,\"EPubDate\":\"\",\"PubModel\":\"\",\"JCR\":\"Q3\",\"JCRName\":\"MECHANICS\",\"Score\":null,\"Total\":0}","platform":"Semanticscholar","paperid":null,"PeriodicalName":"Meccanica","FirstCategoryId":"5","ListUrlMain":"https://link.springer.com/article/10.1007/s11012-025-02037-8","RegionNum":3,"RegionCategory":"工程技术","ArticlePicture":[],"TitleCN":null,"AbstractTextCN":null,"PMCID":null,"EPubDate":"","PubModel":"","JCR":"Q3","JCRName":"MECHANICS","Score":null,"Total":0}
引用次数: 0

摘要

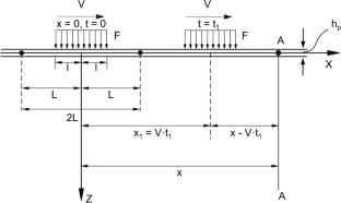
本文研究了裂隙型孔弹性岩石介质上弹性混凝土板在平面应变条件下对移动荷载的动力响应。假定板是薄的、各向同性的、线弹性的。裂隙型孔隙弹性岩石介质是各向同性的,水完全饱和,具有两种类型的孔隙度,一种是由于裂缝将其分成块体,另一种是由于这些块体中的孔隙。假定荷载在有限长度上均匀分布,并以恒定速度运动。该问题描述了一种刚性路面的情况,采用复傅立叶级数方法进行了解析/数值求解。因此,荷载和板岩介质位移随水平坐标(运动方向)和时间呈复傅立叶级数展开。将这些展开式代入平板和半平面岩石介质的运动方程后,相应的偏微分方程分别化为代数方程和常微分方程,易于求解。通过与已有的特殊情况下的响应解的比较,验证了所得响应解的正确性。最后进行参数化研究,评估孔隙率、渗透率、弹性板厚度、车辆荷载速度等问题参数对弹性板响应的影响。
本文章由计算机程序翻译,如有差异,请以英文原文为准。

Dynamic analysis of an elastic plate on a fissured poroelastic half-plane under a moving load

Dynamic analysis of an elastic plate on a fissured poroelastic half-plane under a moving load

This paper studies the dynamic response of an elastic concrete plate on a fissured poroelastic rock medium to a moving load under plane strain conditions. The plate is assumed to be thin, isotropic, and linear elastic. The fissured poroelastic rock medium is isotropic, fully saturated with water, and characterized by two types of porosity, one due to fissures separating it into blocks and one due to the pores in those blocks. The load is assumed to be uniformly distributed over a finite length and moves with constant speed. The problem, which describes a case of rigid pavement, is solved analytically/numerically by the complex Fourier series method. Thus, the load and the plate and rock medium displacements are expanded in complex Fourier series with respect to the horizontal coordinate (motion direction) and the time. Upon substitution of these expansions into the equations of motion for the plate and the half-plane rock medium, the corresponding partial differential equations are reduced to algebraic and ordinary differential equations, respectively, which can be easily solved. The resulting response solution is verified by comparison with existing solutions for special cases. Parametric studies are finally conducted for assessing the effects of problem parameters like porosities, permeabilities, thickness of the elastic plate, and vehicle load speed on the response of the plate.

求助全文
通过发布文献求助,成功后即可免费获取论文全文。 去求助
来源期刊
Meccanica
Meccanica 物理-力学
CiteScore
4.70
自引率
3.70%
发文量
151
审稿时长
7 months
期刊介绍: Meccanica focuses on the methodological framework shared by mechanical scientists when addressing theoretical or applied problems. Original papers address various aspects of mechanical and mathematical modeling, of solution, as well as of analysis of system behavior. The journal explores fundamental and applications issues in established areas of mechanics research as well as in emerging fields; contemporary research on general mechanics, solid and structural mechanics, fluid mechanics, and mechanics of machines; interdisciplinary fields between mechanics and other mathematical and engineering sciences; interaction of mechanics with dynamical systems, advanced materials, control and computation; electromechanics; biomechanics. Articles include full length papers; topical overviews; brief notes; discussions and comments on published papers; book reviews; and an international calendar of conferences. Meccanica, the official journal of the Italian Association of Theoretical and Applied Mechanics, was established in 1966.
×
引用
GB/T 7714-2015
复制
MLA
复制
APA
复制
导出至
BibTeX EndNote RefMan NoteFirst NoteExpress
×
提示
您的信息不完整,为了账户安全,请先补充。
现在去补充
×
提示
您因"违规操作"
具体请查看互助需知
我知道了
×
提示
确定
请完成安全验证×
copy
已复制链接
快去分享给好友吧!
我知道了
右上角分享
点击右上角分享
0
联系我们:info@booksci.cn Book学术提供免费学术资源搜索服务,方便国内外学者检索中英文文献。致力于提供最便捷和优质的服务体验。 Copyright © 2023 布克学术 All rights reserved.
京ICP备2023020795号-1
ghs 京公网安备 11010802042870号
Book学术文献互助
Book学术文献互助群
群 号:604180095
Book学术官方微信