利用床槛减少河道结冲:三维数值研究

IF 2.1 4区 地球科学
Abhishek K. Pandey, Kaushik Balasubramanian, Bidhan Kumar Sahu
{"title":"利用床槛减少河道结冲:三维数值研究","authors":"Abhishek K. Pandey,&nbsp;Kaushik Balasubramanian,&nbsp;Bidhan Kumar Sahu","doi":"10.1007/s11600-025-01578-6","DOIUrl":null,"url":null,"abstract":"<div><p>Open-channel junctions are distinguished by prominent scour zones, where bed scouring modifies river morphology, potentially affecting hydraulic structures and undermining the stability of channel banks and beds. Despite investigations into the causes of channel junction scour, studies on mitigation measures remain limited. This study aims to assess the effectiveness of a bed sill in mitigating scour at a right-angled open-channel junction, utilizing three-dimensional (3D) computational fluid dynamics (CFD) modeling and simulating sediment transport in both bed-load and suspended-load forms. The predictive accuracy of the model is validated through comparison with laboratory data reported in the literature. To address junction scour, a bed sill is installed at various downstream locations from the junction. Comparative analyses indicate that the efficacy of scour reduction is heavily dependent on the bed sill’s placement. Specifically, placing the bed sill downstream of the flow contraction region significantly reduces the near-bed secondary currents from the channel centerline towards the outer bank, leading to decreased bed shear stress and consequently less scouring. Conversely, positioning the bed sill within the flow contraction region proves ineffective in reducing scour. These findings contribute to a better understanding of junction scour mitigation strategies.</p></div>","PeriodicalId":6988,"journal":{"name":"Acta Geophysica","volume":"73 5","pages":"4495 - 4509"},"PeriodicalIF":2.1000,"publicationDate":"2025-05-10","publicationTypes":"Journal Article","fieldsOfStudy":null,"isOpenAccess":false,"openAccessPdf":"","citationCount":"0","resultStr":"{\"title\":\"Reduction of the channel junction scour using a bed sill: a 3D numerical study\",\"authors\":\"Abhishek K. Pandey,&nbsp;Kaushik Balasubramanian,&nbsp;Bidhan Kumar Sahu\",\"doi\":\"10.1007/s11600-025-01578-6\",\"DOIUrl\":null,\"url\":null,\"abstract\":\"<div><p>Open-channel junctions are distinguished by prominent scour zones, where bed scouring modifies river morphology, potentially affecting hydraulic structures and undermining the stability of channel banks and beds. Despite investigations into the causes of channel junction scour, studies on mitigation measures remain limited. This study aims to assess the effectiveness of a bed sill in mitigating scour at a right-angled open-channel junction, utilizing three-dimensional (3D) computational fluid dynamics (CFD) modeling and simulating sediment transport in both bed-load and suspended-load forms. The predictive accuracy of the model is validated through comparison with laboratory data reported in the literature. To address junction scour, a bed sill is installed at various downstream locations from the junction. Comparative analyses indicate that the efficacy of scour reduction is heavily dependent on the bed sill’s placement. Specifically, placing the bed sill downstream of the flow contraction region significantly reduces the near-bed secondary currents from the channel centerline towards the outer bank, leading to decreased bed shear stress and consequently less scouring. Conversely, positioning the bed sill within the flow contraction region proves ineffective in reducing scour. These findings contribute to a better understanding of junction scour mitigation strategies.</p></div>\",\"PeriodicalId\":6988,\"journal\":{\"name\":\"Acta Geophysica\",\"volume\":\"73 5\",\"pages\":\"4495 - 4509\"},\"PeriodicalIF\":2.1000,\"publicationDate\":\"2025-05-10\",\"publicationTypes\":\"Journal Article\",\"fieldsOfStudy\":null,\"isOpenAccess\":false,\"openAccessPdf\":\"\",\"citationCount\":\"0\",\"resultStr\":null,\"platform\":\"Semanticscholar\",\"paperid\":null,\"PeriodicalName\":\"Acta Geophysica\",\"FirstCategoryId\":\"89\",\"ListUrlMain\":\"https://link.springer.com/article/10.1007/s11600-025-01578-6\",\"RegionNum\":4,\"RegionCategory\":\"地球科学\",\"ArticlePicture\":[],\"TitleCN\":null,\"AbstractTextCN\":null,\"PMCID\":null,\"EPubDate\":\"\",\"PubModel\":\"\",\"JCR\":\"\",\"JCRName\":\"\",\"Score\":null,\"Total\":0}","platform":"Semanticscholar","paperid":null,"PeriodicalName":"Acta Geophysica","FirstCategoryId":"89","ListUrlMain":"https://link.springer.com/article/10.1007/s11600-025-01578-6","RegionNum":4,"RegionCategory":"地球科学","ArticlePicture":[],"TitleCN":null,"AbstractTextCN":null,"PMCID":null,"EPubDate":"","PubModel":"","JCR":"","JCRName":"","Score":null,"Total":0}
引用次数: 0

摘要

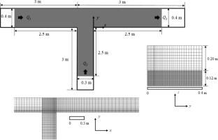
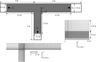
明渠交汇处以明显的冲刷带为特征,河床冲刷改变了河流的形态,可能影响水工结构,破坏河滩和河床的稳定性。尽管对河道交汇处冲刷的原因进行了调查,但对缓解措施的研究仍然有限。本研究旨在利用三维(3D)计算流体动力学(CFD)建模和模拟床载和悬载形式的泥沙输运,评估在直角明渠连接处,床载缓减冲刷的有效性。通过与文献中报道的实验室数据比较,验证了模型的预测准确性。为了解决连接点冲刷问题,在连接点下游的各个位置安装了一个床槛。对比分析表明,减少冲刷的效果在很大程度上取决于床槛的位置。具体而言,将河床置于水流收缩区的下游,可以显著减少从河道中心线流向外滩的近河床二次流,从而降低河床剪切应力,从而减少冲刷。相反,将床层仍置于流动收缩区域内对减少冲刷是无效的。这些发现有助于更好地理解结冲刷缓解策略。
本文章由计算机程序翻译,如有差异,请以英文原文为准。

Reduction of the channel junction scour using a bed sill: a 3D numerical study

Reduction of the channel junction scour using a bed sill: a 3D numerical study

Reduction of the channel junction scour using a bed sill: a 3D numerical study

Open-channel junctions are distinguished by prominent scour zones, where bed scouring modifies river morphology, potentially affecting hydraulic structures and undermining the stability of channel banks and beds. Despite investigations into the causes of channel junction scour, studies on mitigation measures remain limited. This study aims to assess the effectiveness of a bed sill in mitigating scour at a right-angled open-channel junction, utilizing three-dimensional (3D) computational fluid dynamics (CFD) modeling and simulating sediment transport in both bed-load and suspended-load forms. The predictive accuracy of the model is validated through comparison with laboratory data reported in the literature. To address junction scour, a bed sill is installed at various downstream locations from the junction. Comparative analyses indicate that the efficacy of scour reduction is heavily dependent on the bed sill’s placement. Specifically, placing the bed sill downstream of the flow contraction region significantly reduces the near-bed secondary currents from the channel centerline towards the outer bank, leading to decreased bed shear stress and consequently less scouring. Conversely, positioning the bed sill within the flow contraction region proves ineffective in reducing scour. These findings contribute to a better understanding of junction scour mitigation strategies.

求助全文
通过发布文献求助,成功后即可免费获取论文全文。 去求助
来源期刊
Acta Geophysica
Acta Geophysica GEOCHEMISTRY & GEOPHYSICS-
CiteScore
3.80
自引率
13.00%
发文量
251
期刊介绍: Acta Geophysica is open to all kinds of manuscripts including research and review articles, short communications, comments to published papers, letters to the Editor as well as book reviews. Some of the issues are fully devoted to particular topics; we do encourage proposals for such topical issues. We accept submissions from scientists world-wide, offering high scientific and editorial standard and comprehensive treatment of the discussed topics.
×
引用
GB/T 7714-2015
复制
MLA
复制
APA
复制
导出至
BibTeX EndNote RefMan NoteFirst NoteExpress
×
提示
您的信息不完整,为了账户安全,请先补充。
现在去补充
×
提示
您因"违规操作"
具体请查看互助需知
我知道了
×
提示
确定
请完成安全验证×
copy
已复制链接
快去分享给好友吧!
我知道了
右上角分享
点击右上角分享
0
联系我们:info@booksci.cn Book学术提供免费学术资源搜索服务,方便国内外学者检索中英文文献。致力于提供最便捷和优质的服务体验。 Copyright © 2023 布克学术 All rights reserved.
京ICP备2023020795号-1
ghs 京公网安备 11010802042870号
Book学术文献互助
Book学术文献互助群
群 号:604180095
Book学术官方微信