Mandatory Requirements for Planning and Commissioning of Medical Cyclotron Facility.

IF 0.5 Q4 RADIOLOGY, NUCLEAR MEDICINE & MEDICAL IMAGING
Indian Journal of Nuclear Medicine Pub Date : 2024-07-01 Epub Date: 2024-11-18 DOI:10.4103/ijnm.ijnm_102_23
Rajeev Kumar, Pankaj Tandon, Kamal Deep
{"title":"Mandatory Requirements for Planning and Commissioning of Medical Cyclotron Facility.","authors":"Rajeev Kumar, Pankaj Tandon, Kamal Deep","doi":"10.4103/ijnm.ijnm_102_23","DOIUrl":null,"url":null,"abstract":"<p><p>Over the last 15 years, there has been substantial growth in the installation of medical cyclotrons. This is mainly due to the increased demand for the production of positron emission tomography radiopharmaceuticals. In every country, there is a regulatory body that regulates the uses of medical cyclotron intending to protect occupational workers, the public, and the environment. It regulates the entire stages of such facilities, which mainly controls regulatory activities such as construction, commissioning, operation, and decommissioning. This article primarily highlights the key practices for planning and installation of a medical cyclotron facility (MCF). It also covers the particular aspects that should be considered in the early stages of project planning and provides information for best practices and challenges. If these aspects are properly addressed, then it ensures the safe operation of the MCF. The texts also elaborate on the necessary requirements for effective planning of the MCF, such as layout and space considerations, workload plan and maximum research capacity of the institute and equipment, shielding requirements, water cooling circuit, storage of radioactive components, management of radioactive waste from medical cyclotron and radiochemistry laboratory, construction and commissioning project management, exhaust system and filtration options, plans for staffing and training, and combination of equipment safety systems and building safety systems.</p>","PeriodicalId":45830,"journal":{"name":"Indian Journal of Nuclear Medicine","volume":"39 4","pages":"243-250"},"PeriodicalIF":0.5000,"publicationDate":"2024-07-01","publicationTypes":"Journal Article","fieldsOfStudy":null,"isOpenAccess":false,"openAccessPdf":"https://www.ncbi.nlm.nih.gov/pmc/articles/PMC11708802/pdf/","citationCount":"0","resultStr":null,"platform":"Semanticscholar","paperid":null,"PeriodicalName":"Indian Journal of Nuclear Medicine","FirstCategoryId":"1085","ListUrlMain":"https://doi.org/10.4103/ijnm.ijnm_102_23","RegionNum":0,"RegionCategory":null,"ArticlePicture":[],"TitleCN":null,"AbstractTextCN":null,"PMCID":null,"EPubDate":"2024/11/18 0:00:00","PubModel":"Epub","JCR":"Q4","JCRName":"RADIOLOGY, NUCLEAR MEDICINE & MEDICAL IMAGING","Score":null,"Total":0}
引用次数: 0

Abstract

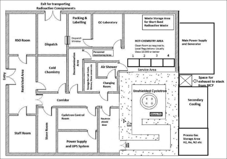
Over the last 15 years, there has been substantial growth in the installation of medical cyclotrons. This is mainly due to the increased demand for the production of positron emission tomography radiopharmaceuticals. In every country, there is a regulatory body that regulates the uses of medical cyclotron intending to protect occupational workers, the public, and the environment. It regulates the entire stages of such facilities, which mainly controls regulatory activities such as construction, commissioning, operation, and decommissioning. This article primarily highlights the key practices for planning and installation of a medical cyclotron facility (MCF). It also covers the particular aspects that should be considered in the early stages of project planning and provides information for best practices and challenges. If these aspects are properly addressed, then it ensures the safe operation of the MCF. The texts also elaborate on the necessary requirements for effective planning of the MCF, such as layout and space considerations, workload plan and maximum research capacity of the institute and equipment, shielding requirements, water cooling circuit, storage of radioactive components, management of radioactive waste from medical cyclotron and radiochemistry laboratory, construction and commissioning project management, exhaust system and filtration options, plans for staffing and training, and combination of equipment safety systems and building safety systems.

Abstract Image

Abstract Image

Abstract Image

医用回旋加速器设施规划和调试的强制性要求。
在过去的15年里,医疗回旋加速器的安装有了很大的增长。这主要是由于对生产正电子发射断层扫描放射性药物的需求增加。每个国家都有一个监管机构,负责监管医用回旋加速器的使用,以保护职业工人、公众和环境。它对这些设施的整个阶段进行监管,主要控制诸如建设、调试、运营和退役等监管活动。本文主要强调规划和安装医疗回旋加速器设施(MCF)的关键实践。它还涵盖了在项目规划的早期阶段应该考虑的特定方面,并提供了有关最佳实践和挑战的信息。如果这些方面得到妥善解决,那么就可以确保MCF的安全运行。这些文件还详细阐述了有效规划MCF的必要要求,如布局和空间考虑、研究所和设备的工作量计划和最大研究能力、屏蔽要求、水冷却回路、放射性部件的储存、医疗回旋加速器和放射化学实验室放射性废物的管理、建设和调试项目管理、排气系统和过滤方案、人员配备和培训计划、以及设备安全系统和建筑安全系统的结合。
本文章由计算机程序翻译,如有差异,请以英文原文为准。
求助全文
约1分钟内获得全文 求助全文
来源期刊
Indian Journal of Nuclear Medicine
Indian Journal of Nuclear Medicine RADIOLOGY, NUCLEAR MEDICINE & MEDICAL IMAGING-
CiteScore
0.70
自引率
0.00%
发文量
46
×
引用
GB/T 7714-2015
复制
MLA
复制
APA
复制
导出至
BibTeX EndNote RefMan NoteFirst NoteExpress
×
提示
您的信息不完整,为了账户安全,请先补充。
现在去补充
×
提示
您因"违规操作"
具体请查看互助需知
我知道了
×
提示
确定
请完成安全验证×
copy
已复制链接
快去分享给好友吧!
我知道了
右上角分享
点击右上角分享
0
联系我们:info@booksci.cn Book学术提供免费学术资源搜索服务,方便国内外学者检索中英文文献。致力于提供最便捷和优质的服务体验。 Copyright © 2023 布克学术 All rights reserved.
京ICP备2023020795号-1
ghs 京公网安备 11010802042870号
Book学术文献互助
Book学术文献互助群
群 号:604180095
Book学术官方微信